
【鍵屋荘Project】点群データから認識を探る―京町家スキャンデータの活用法―
【Kagiyasou Project】Deciphering Kyo-machiya: New Perspectives in Point Cloud Data Recognition
執筆:蓮沼 岳人、水﨑 恒志、森 翔一
鍵屋荘について
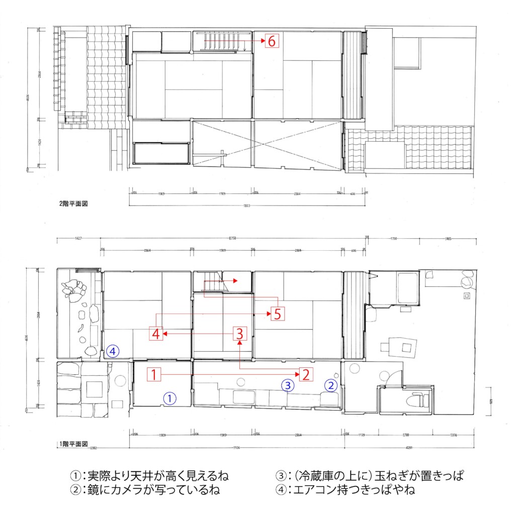
鍵屋荘は京都市下京区に位置する裏長屋の一棟である。2012年から来訪型のシェアハウスとして利用されてきたが、2020年から学生のシェアハウスとして使用されており、2~3人の学生が居住している。下の図面はスキャン当時(2025年5月)の居住状態を示している。建築としては明治38年に貸家として三棟建てられたうちの一棟であり、周囲の建築群を含めて当時から大きく変化していない。建物に関する調査は「鍵屋荘調査報告書(樋田,2023)」としてまとめられてる。
本記事について
点群データは建物の形状を測るのに役立ち、環境や人流などのシミュレーションに用いられている。私たちの目的は生活空間や空間認識を点群データやVRを用いて分析する手法を模索することである。分析手法を評価するうえで図面データなどが整っていることは役立つと考える。その点鍵屋荘は現在も学生が居住しており、調査によって現状の細かい図面が整っているため活動が行いやすかった。
(森翔一)

(鍵屋荘調査報告書より筆者作成)
pixel-house
引っ越したばかりの部屋はどこかよそよそしい。ダンボールから荷物を取り出し、並べていくうちに自分の空間という気持ちが湧いてくる。高齢者福祉施設では、部屋を入居者の私物で自分の家らしく飾り付けることが有効という話もある。このように、「自分の空間という感覚・認識」が(視覚的に)どう生まれるかに興味がある。
アナログとデジタルを行き来する際のディティールの欠落は免れない。ここではこの情報量の低下を肯定的に捉えたい。低解像度化されたパラレルな住空間(=pixel house)を追体験して、居住者がそこから何を認識するのかを実験した。
【手法】
・鍵屋荘の点群データを4段階の解像度で間引き、各点に色情報と球体ボリュームを与えることで、pixel-house =モザイク的住空間を構築する。
・VRゴーグルを用いて被験者にpixel-houseを解像度の低い順に体験してもらい、場所を特定できるか、家具やモノを認識できるか、その他コメントを記録する。
鍵屋荘の居住者であるMさんとNさん、一度訪れた経験のあるRさんに体験してもらった。また、体験するスポットとして玄関・Mさんの部屋・Nさんの部屋を選択した。体験者は首を振るなどにより各スポットを見渡すことができる。解像度については隣接点のスパンが50mm. 100mm, 200mm, 300mmになるように4段階用意した。
【結果・考察】
全体の結果は図にまとめ下に示す。300mmの段階では,空間はボリュームの有無や高さ情報など単なる立体幾何学的特徴として捉えられ、その後解像度が上がるにつれて、家具・建具スケールのモノから特定の小物へと順次認識された。300mmの段階で場所が特定されたのは玄関のみだったが、これは火袋による天井高さやトオリニワの奥行きなど、モノによらない立体幾何学的特徴に富むためだと考えられる。居住者ではないRさんについては、天井のライトやエアコン、キッチンなど、ある程度工業化・モジュール化された要素をよく認識した。また、Nさん自室について、100mmの解像度にならないと自室でも分からないのは意外だった。
(水﨑恒志、プログラム作成:森翔一)

VRによる空間視点の抽出
1. 研究の目的と動機
近年、VR技術が身近になり、建築分野でも新しい空間体験の可能性が広がっている。私も以前からVRを使った空間研究に興味を持っていたが、技術的な壁に阻まれていた。そんな時、他研究室の友人がシェアハウス「鍵屋荘」をMatterportで3Dスキャンする機会を得ていることを知った。友人のデータを活用させてもらい、VR体験を設計することになった。この研究では、様々な背景を持つ人たちにVR体験をしてもらい、それぞれがどこに注目し、何を感じるかを比べてみたい。住人、一度訪れたことがある人、建築の知識がない人など、人によって見える景色は全く違うはずだ。そうした違いを記録し分析することで、空間が持つ多面的な意味や、そこに重なり合う記憶の層を浮き彫りにしていきたいと考えている。
2. 実験の手法と目標
本研究では、「鍵屋荘」をMatterportで3Dスキャンし、そのデータを基にVR空間を構築した。参加者が自由に探索しながら、気になった場所やモノにメモを残せる仕組みを準備している。実験には、鍵屋荘の現住者、過去に訪れた人、建築の専門知識を持たない第三者など、異なる背景を持つ複数の参加者を招く。同じVR空間を体験してもらい、「どこに注目したのか」「なぜそこに関心を持ったのか」といった視点の違いを比較・記録する。住人だからこそ気づく痕跡、訪問経験者が感じる懐かしさ、初めて見る人が発見する新鮮さ—こうした空間を読み解く視点の多様性を浮かび上がらせることが実験の目標である。同一のVR空間上で、異なる人々が何を見て何を見落とすのか。その差異を観察することで、物理的な空間の特性だけでは捉えきれない、記憶や関係性の層を明らかにできるだろう。
3. 結果と考察
今回の実験では6名中5名について、それぞれの背景による空間認識の違いを分析した。(以下、実験の様子)

⑴ 居住者1
この参加者の特徴は、鍵屋荘の歴史的変遷に対する深い知識が反映されていることである。⑨や⑳のように時間軸を遡る視点でメモを残している。⑮などのメモには建築史研究の専門性も現れており、改修や変更の履歴を詳細に把握している。また、③や㉔のメモには実用的な観点も見られ、居住者としての実体験と研究者としての客観的視点が重なった結果といえるだろう。

⑵ 居住者2
居住者2の特徴は、実際に住んでいるからこそ気づく「普段とは異なる点」への言及が多かったことである。スキャン時の状況を、日常的に見慣れた光景と比較しながらメモを残していた。他の参加者と比べてメモ数が少ないのは、VRに対する耐性が低く、すぐに気分が悪くなったためである。ただし、これは実験プログラム上で現実とVR上の動きに差があることも一因で、他の参加者も程度の差はあれ気分の悪化を訴えており、今後の改善が必要な課題となっている。

⑶ 建築学生1
建築学生1の特徴は、メモの大半がモノに焦点を当てていたことである。以前の訪問経験により建物の概要を把握していたため、細部に注意が向かったと考えられる。
興味深いのは台所にメモを残さなかった点で、これは実験開始時に開いた扉から部屋を覗いたことで意識がそちらに先行したためと推察される。また、住民との個人的なつながりや自身の研究分野に関するメモも残しており、既存知識が空間認識に影響していることが分かる。

⑷ 建築学生2
建築学生2は空間に対する言及が多く、長屋などの日本建築への関心が背景にあると推測される。以前の訪問時とは住民が変わっていたため、空間の使い方の変化についても鋭く観察していた。また、目に留まったモノから連想を広げてコメントする傾向も見られ、空間を物語として読み取ろうとする建築学的思考が現れていた。

⑸ 建築未学者
建築未学者は空間への言及があったものの、建築のルールを問う素朴な疑問の形をとっていた。住民の生活を想像するメモを残すという他にない特徴も示した。特に注目すべきは移動経路で、他の参加者が1階を順序立てて見回ってから2階に上がったのに対し、建築未学者は台所の後に直接2階へ向かい、その後1階に戻るという独特なパターンを示した。これは台所で階段についてメモを取った直後の行動であり、その瞬間の興味に導かれる直感的な探索を表している。専門知識による体系的な空間把握ではなく、より感覚的な空間体験の現れといえる。

4. まとめ
以上の分析を通して、居住者は「普段との違い」に着目し、建築学生は細部のモノに注目しながら空間の変化を読み取り、建築未学者は直感的に探索するなど、同一空間でも全く異なる認識パターンを示すことが明らかになった。
ただし、実験を通して大きな課題も浮上した。現実とVR空間の動きの差異により、多くの参加者がVR酔いを経験したのである。これは予想以上に深刻で、せっかくの体験が途中で中断されるケースも多く、技術的な改善が急務であることを痛感した。
それでも、この研究は多様な利用者の視点を考慮した建築デザインの重要性を示すとともに、VR技術を用いた空間体験研究の可能性と課題を明確にできた。VR酔いの問題を解決できれば、さらなる発見が期待できるだろう。
(蓮沼岳人、プログラム作成:森翔一)
蓮沼 岳人(はすぬま・がくと)
京都大学大学院工学研究科建築学専攻、三浦・酒谷研究室修士 1 年、兵庫県出身。VR 技術の進化と、そこに拓ける新たな可能性に関心を持つ。
水﨑 恒志(みずさき・こうし)
同専攻、柳沢研究室修士 1 年、福岡県出身。興味は、架空の視覚的空間が喚起するイメージと、その知覚のあり方にある。
森 翔一(もり・しょういち)
同専攻、神吉研究室修士 1 年、大阪府出身。思想や情報などの仮想の存在が現実になる瞬間に関心を寄せる。